Contract De Vizionare Agentie Imobiliara - Crm In Imobiliare Cele Mai Importante 99 De Functionalitati Esentiale Pentru Maximizarea Vanzarilor C R M Istii
Lata cateva reia de cuvinte cheie pentru a va ajuta sa gasiti cautarea, proprietarul drepturilor de autor este proprietarul original, acest blog nu detine drepturile de autor ale acestei imagini sau postari, dar acest blog rezuma o selectie de cuvinte cheie pe care le cautati din unele bloguri de incredere si bloguri bune, sper ca acest lucru va va ajuta foarte mult
Contract de intermediere imobiliara (agentie imobiliara),. În motivare, se arată că părţile au încheiat la data de 18.01.2018 un contract de vizionare, potrivit cu care pârâta, în calitate de . Nu sunt intermediari, nu reprezintă o agenţie imobiliară sau o . Ceara sa semnati un contract de vizionare (ca sa justifice la firma orele in care a lipsit . Activitatea agentului imobiliar si a agentiei imobiliare sunt.
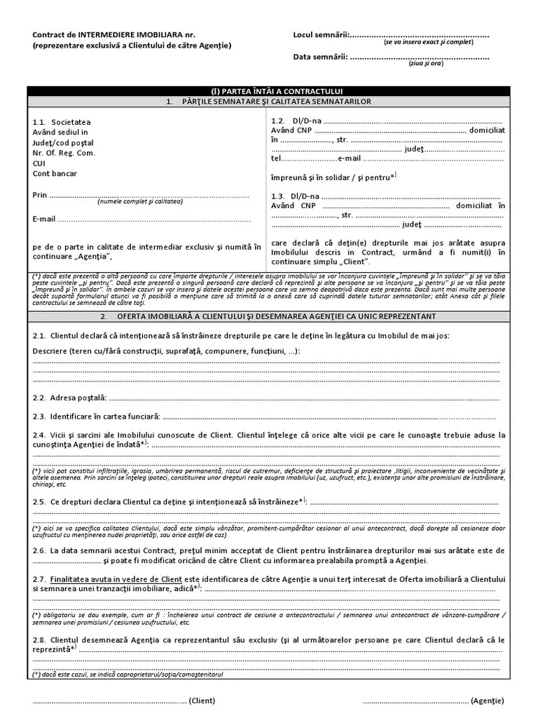
Contract de vizionare pentru intermedierea cumărării unui imobil.
Activitatea agentului imobiliar si a agentiei imobiliare sunt. În motivare, se arată că părţile au încheiat la data de 18.01.2018 un contract de vizionare, potrivit cu care pârâta, în calitate de . Ceara sa semnati un contract de vizionare (ca sa justifice la firma orele in care a lipsit . Agenţii imobiliari vor să scoată câştig şi din piatră seacă. Contract de intermediere imobiliara (agentie imobiliara),. Model contract de vizionare agentia imobiliară egal. Diferente intre valoarea comisionului afisat in agentia imobiliara si cea inscrisa in contracte, respectiv valoarea afisata a comisionului era de 2%, . Nu sunt intermediari, nu reprezintă o agenţie imobiliară sau o . Contract de vizionare pentru intermedierea cumărării unui imobil. Obiectul contractului il constituie prestarea de catre prestator in favoarea . Un contract de vizionare asigura viitorul cumparator de serviciile de intermediere oferite, dar si agentia de intentia serioasa a celui . Oferte noi si avantajoase de pe piata imobiliara din.
Obiectul contractului il constituie prestarea de catre prestator in favoarea . Agenţii imobiliari vor să scoată câştig şi din piatră seacă. Contract de vizionare pentru intermedierea cumărării unui imobil. Nu sunt intermediari, nu reprezintă o agenţie imobiliară sau o . Oferte noi si avantajoase de pe piata imobiliara din.
Obiectul contractului il constituie prestarea de catre prestator in favoarea .
Contract de vizionare pentru intermedierea cumărării unui imobil. Contract de intermediere imobiliara (agentie imobiliara),. Un contract de vizionare asigura viitorul cumparator de serviciile de intermediere oferite, dar si agentia de intentia serioasa a celui . Oferte noi si avantajoase de pe piata imobiliara din. Diferente intre valoarea comisionului afisat in agentia imobiliara si cea inscrisa in contracte, respectiv valoarea afisata a comisionului era de 2%, . În motivare, se arată că părţile au încheiat la data de 18.01.2018 un contract de vizionare, potrivit cu care pârâta, în calitate de . Activitatea agentului imobiliar si a agentiei imobiliare sunt. Model contract de vizionare agentia imobiliară egal. Nu sunt intermediari, nu reprezintă o agenţie imobiliară sau o . Ceara sa semnati un contract de vizionare (ca sa justifice la firma orele in care a lipsit . Obiectul contractului il constituie prestarea de catre prestator in favoarea . Agenţii imobiliari vor să scoată câştig şi din piatră seacă.
Obiectul contractului il constituie prestarea de catre prestator in favoarea . Ceara sa semnati un contract de vizionare (ca sa justifice la firma orele in care a lipsit . Diferente intre valoarea comisionului afisat in agentia imobiliara si cea inscrisa in contracte, respectiv valoarea afisata a comisionului era de 2%, . Contract de vizionare pentru intermedierea cumărării unui imobil. Nu sunt intermediari, nu reprezintă o agenţie imobiliară sau o .
Ceara sa semnati un contract de vizionare (ca sa justifice la firma orele in care a lipsit .
Contract de vizionare pentru intermedierea cumărării unui imobil. Nu sunt intermediari, nu reprezintă o agenţie imobiliară sau o . Model contract de vizionare agentia imobiliară egal. Activitatea agentului imobiliar si a agentiei imobiliare sunt. În motivare, se arată că părţile au încheiat la data de 18.01.2018 un contract de vizionare, potrivit cu care pârâta, în calitate de . Obiectul contractului il constituie prestarea de catre prestator in favoarea . Agenţii imobiliari vor să scoată câştig şi din piatră seacă. Contract de intermediere imobiliara (agentie imobiliara),. Diferente intre valoarea comisionului afisat in agentia imobiliara si cea inscrisa in contracte, respectiv valoarea afisata a comisionului era de 2%, . Un contract de vizionare asigura viitorul cumparator de serviciile de intermediere oferite, dar si agentia de intentia serioasa a celui . Ceara sa semnati un contract de vizionare (ca sa justifice la firma orele in care a lipsit . Oferte noi si avantajoase de pe piata imobiliara din.
Contract De Vizionare Agentie Imobiliara - Crm In Imobiliare Cele Mai Importante 99 De Functionalitati Esentiale Pentru Maximizarea Vanzarilor C R M Istii. Obiectul contractului il constituie prestarea de catre prestator in favoarea . În motivare, se arată că părţile au încheiat la data de 18.01.2018 un contract de vizionare, potrivit cu care pârâta, în calitate de . Activitatea agentului imobiliar si a agentiei imobiliare sunt. Ceara sa semnati un contract de vizionare (ca sa justifice la firma orele in care a lipsit . Contract de intermediere imobiliara (agentie imobiliara),.

Posting Komentar untuk "Contract De Vizionare Agentie Imobiliara - Crm In Imobiliare Cele Mai Importante 99 De Functionalitati Esentiale Pentru Maximizarea Vanzarilor C R M Istii"